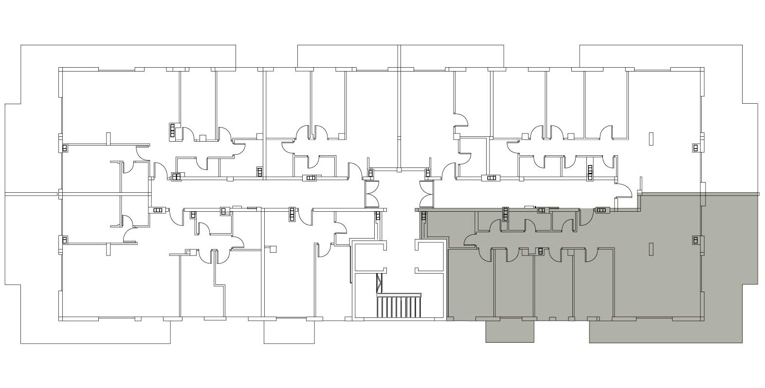
Petosoban tip 1
142.93m2
Osnova stana

Namena Prostorije
P (m2)
1
Ulaz
5,45
2
Kuhinja
3,81
3
Dnevni boravak sa trpezarijom
36,23
4
Soba
12,37
5
Soba
10,21
6
Soba
9,93
7
Soba
10,60
8
Wc
1,74
9
Kupatilo
3,11
10
Vešernica
2,02
11
Kupatilo
5,98
12
Hodnik
7,07
13
Terasa
31,55
14
Terasa
2,85
Ukupno
142,93
Orijentacija stana