Četvorosoban tip 1

79.14 - 79.57m2
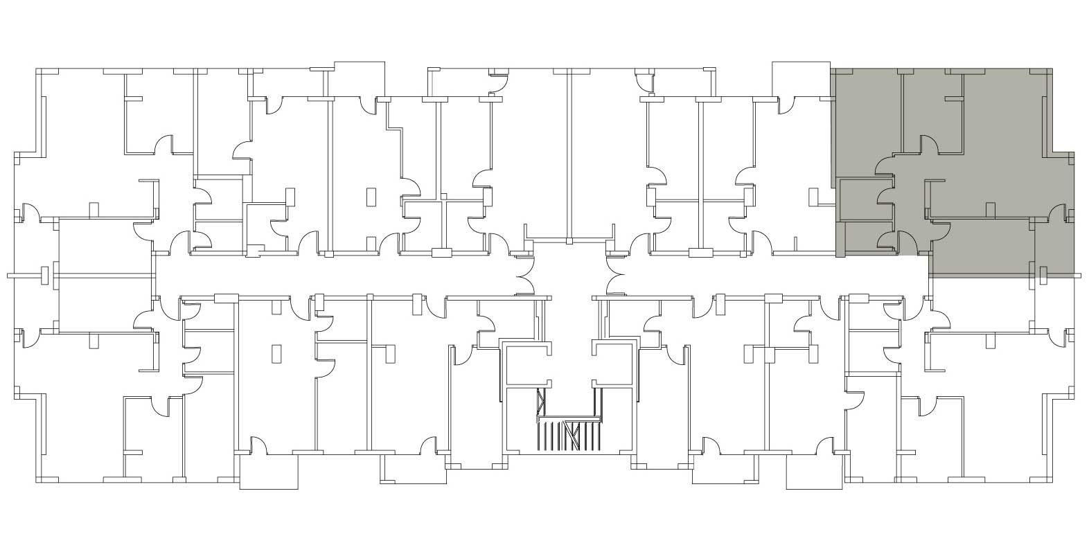
Osnova stana
Stan-24_WEB
Namena Prostorije P (m2)
1 Ulaz
4,92
2 Kuhinja
4,54
3 Dnevni boravak sa trepezarijom
26,98
3 Soba
10,40
4 Soba
13,03
5 Soba
8,59
6 Kupatilo
2,73
7 Kupatilo
4,19
8 Terasa
3,52
Ukupno
79,26
Orijentacija stana
cetvorosobantip1
Osnova sprata
Prizemlje_NEW-24_WEB
3D prikaz
Preuzmite brosuru

Posaljite upit za stan