Četvorosoban tip 4

117,41
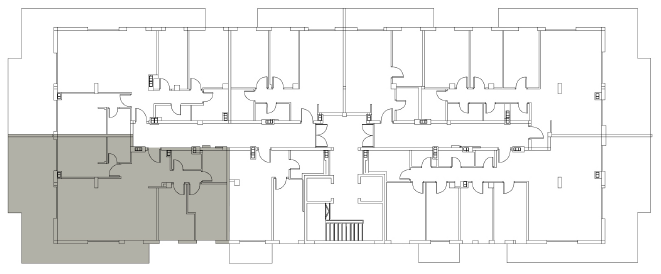
Osnova stana
Stan-93_WEB
Namena Prostorije P (m2)
1 Ulaz
7,48
2 Kuhinja
5,95
3 Dnevni boravak sa trepezarijom
27,04
4 Soba
11,9
5 Soba
9,70
6 Soba
10,94
7 Kupatilo
4,32
8 Wc
2,92
9 Kupatilo
3,22
10 Hodnik
2,93
11 Terasa
31,41
Ukupno
117,41
Orijentacija stana
cetvorosobantip4
Osnova sprata
cettip4
3D prikaz
Preuzmite brosuru

Posaljite upit za stan